Studio di progettazione
Architetto Luca Rossi
Home
|
Area riservata
|
News
Home
Chi siamo
Progetti in Italia
Progetti all´estero
Dove siamo
Contatti
Edifici residenziali
Residenze, Terre Perse Lido
Residenze, Cavallino Treporti
Via della Droma, Lido
Case Corte Cordami, Giudecca
Case vacanza, Treporti
Ex Pastificio Zaggia, Giudecca
Ex Scalera, Giudecca
Bissuola, Mestre
18 case a schiera, Cavarzere
57 Alloggi, Spinea, Via Mion
Condominio Gescal, Spinea
Villa, Golfo Aranci Olbia
Alloggi IACP, Salzano
Complesso turistico San Felice
Case vacanza, Ca´di Valle
Residenze, Alberoni
Condominio Quintavalle
Bivilla Vianello, Ca´ Savio
7 Appartamenti, Ca´Savio
Alloggi, Rioni Sassi di Matera
Ville fronte laguna, Cavallino
Condominio Lazzarini,Ca´Savio
100 appartamenti, Ca´Savio
Appartamenti,Cavallino,Venezia
Casa Tagliapietra, Treporti
Residenze, Torcello
Casa Cerchiate, Milano
Condominio Salvalaggio
Casa Scarpa, Ca´Savio
Complesso residenziale, Burano
9 case a schiera, Spinea
complesso edilizio, Spinea
Progetti in Italia >>
Edifici residenziali >>
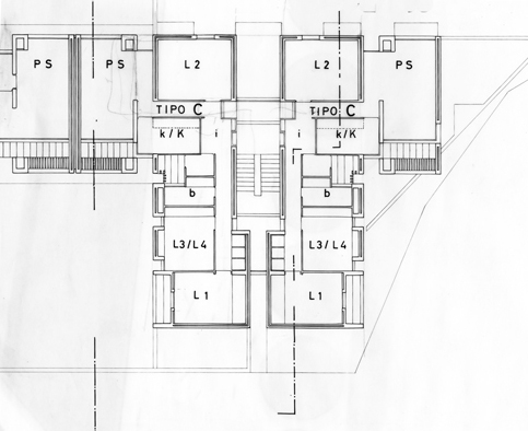
Alloggi IACP, Salzano
CONDOMINIO, SALZANO VENEZIA
8 alloggi,
- Committente : I.A.C.P. Venezia
- Località: Salzano Venezia
- Progetto realizzato
- Anno: 1974
Pianta (click per zoom)
Arch. Luca Rossi - San Marco 5409 Venezia (VE) - P.IVA 00381020270
-
Privacy
-
Note legali
Powered by
Logos Engineering
-
Lexun ®
- 14/03/2026