ALLOGGI NELL’AREA EX SCALERA
160 alloggi, 56.000 mc complessivi
- Committente: Finplan - Acquamarcia - Roma
- Località: Giudecca, Venezia
- Progetto di massima e fattibilità
- Anno 1993

Vista del modello

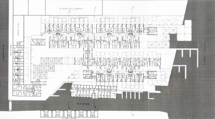
Planimetria

Pianta piano terra e piano primo (click per zoom)

Pianta piano secondo e terzo (click per zoom)